
技術學習 | 施工現場“隱藏至深”的偷工減料行為,監理必須知道!發布日期:2019-07-10
一、如何判定是否屬于偷工減料?
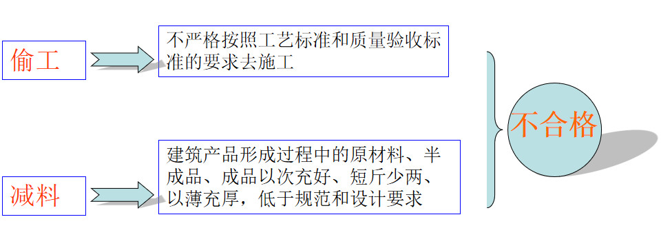
偷工減料是工程建設的參建各方以自身經濟利益為出發點,采取的降低工程質量標準、違反工程施工質量驗收規范、逃脫質量監督驗收程序的行為,嚴格意義上說是一種違法行為。1、主要涉及三個相關方:
建設方:為降低工程造價而要求設計方、施工方采取或使用低質量的材料、構件等進行設計與施工。
施工單位(包括總包、分包、班組):材料質量低于設計和規范要求,施工過程不按施工工藝標準和質量驗收標準進行施工。
監督單位:不履行監督職責、不嚴格執行驗收程序等。
總承包單位是工程施工的組織者、直接管控者,是工程質量控制最核心、最關鍵的主體,應該在防止工程建設偷工減料上發揮主導作用。
2、造成質量不合格的直接原因和根本原因
二、常見的偷工減料都有哪些形式?
1、鋼筋工程1)鋼筋綁扎過稀,跳綁、漏綁,特別梁底筋漏綁。
2)框架柱與梁交接處的加密箍往往會少放1~2個,有的只有外箍而沒有內箍。
3)鋼筋不安裝加強筋、附加筋等。
4)保護層墊塊少放或放置不符合要求,特別是梁底。
▲柱子露筋
▲板底露筋
▲梁底露筋
5)鋼筋原材不切割平頭,直螺紋連接有效絲扣數不足。
6)采用“瘦身鋼筋”,盤卷鋼筋拉伸率超過規范要求(光圓鋼筋冷拉率不宜大于4%,帶肋鋼筋的冷拉率不宜大于1%)。

2、模板工程
1)模板、木枋厚度、尺寸、質量標準達不到要求,鋼管扣件厚度過薄,銹蝕嚴重.
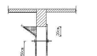
2)支模架不設掃地桿,立、橫桿間距過大,防滑保險扣件未扣,上部不設縱橫水平桿。

防滑保險扣件未扣;立桿上端伸出頂層水平桿長度超過規范要求。
3)模板拼縫過大時不采取有效的措施,而使用蛇皮袋堵漏。

4)對拉螺桿間距不按方案執行。
5)模板加固不到位,造成跑模、脹模。
6)柱墻封模前,底部松散混凝土、鋸木灰、雜物等未清理干凈;梁底鋸木灰、雜物等不清理。
7)砼等級相差較大的梁柱接頭不用鋼絲網等進行攔堵或攔堵不牢固。
3、混凝土工程
1)商品混凝土配合比中水泥參量偏低。
2)在澆筑砼前不濕潤模板。
3)混凝土入泵、澆筑過程中加水。
4)混凝土澆筑時不振搗、漏振搗、隨意振搗。

5)樓板未進行二次抹面、不收光、不澆水養護或養護時間不足。
6)施工縫不鑿毛,如,柱墻施工縫處未將松散的混凝土、浮漿清除。

7)屋面、衛生間等處吊洞未分兩次澆筑,易造成滲漏。

①、洞口鑿毛;
②、周邊涮素水泥漿一遍;
③、分兩次澆注高一級強度的細石砼,第一次砼厚度控制在板厚1/3~1/2處并用鋼筋棒搗鼓密實,第二次砼澆至離板口處作收光處理,
④、再用防水材料進行處理一遍(管邊上反至出建筑標高50mm,周邊出洞邊150~200mm),做閉水試驗。
8)砼澆筑時無鋼筋工、木工值班,跑、暴模無人處理。
9)后澆帶澆筑時不鑿毛、不清理、不抽水、不養護等。
4、砌體工程
1)砌塊尺寸偏差較大、養護齡期不足,質量不符合要求。
2)砌塊不提前濕水,砌體施工時干磚上墻。
3)砂漿不飽滿。

4)砌體拉結筋的植筋錨固長度不足、松動。
5)構造柱、施工洞兩側不按規范要求放置拉結筋。
▲無拉結筋
▲已設置拉結筋
6)構造柱頂部砼澆筑不密實。

5、抹灰工程
1)抹灰前,不同材質墻體交接處,漏掛網。
2)抹灰未做護角、打餅數量過少,抹灰時一次成活,抹灰后未進行養護。
6、防水工程
1)防水材料采用非標產品,如卷材厚度不夠等指標不達標。
2)防水施工時基層處理不到位,如不堅實、清理不干凈;陰陽角未做圓弧角,不做防水附加層。
防水基層細部
▲砼防水基層堅實、干凈、平整、壓光、無起砂
卷材防水面層基層中的陰陽角等處要做圓弧。圓弧直徑要求:瀝青防水卷材200~300mm,高聚物改性瀝青防水卷材100mm,合成高分子防水卷材40mm。
卷材防水面層基層中的陰陽角等處要做圓弧。圓弧直徑要求:瀝青防水卷材200~300mm,高聚物改性瀝青防水卷材100mm,合成高分子防水卷材40mm。
3)卷材搭接不嚴密,收頭不符合要求。

卷材壓入墻體凹槽內,用壓條釘壓固定并用密封材料密封嚴密,凹槽距屋面完成面高度不少于250mm,凹槽上部墻體做防水處理。
7、其它材料
半成品、成品材料達不到國家標準要求,也就是常說的“非標”產品,如欄桿用不銹鋼管的厚度、瓷磚等裝飾材料,很多分包靠以差代優、以次充好來,賺取利潤。
三、偷工減料的防治措施
1、嚴格材料驗收制度,防范分包靠以差代優、以次充好賺取差價。
2、事前做好交底,交底內容應可操作、明確工藝流程標準及質量驗收標準。對工序較復雜、質量通病頻發的部分,一定要樣板引路。
3、過程中要勤復核和檢查。
4、工序完成后要嚴格驗收程序。
5、對于頻發的質量問題要有處罰、修補措施。對屢教不改的作業隊、分包商應清退出場。